Walking Distance to Middlebrook, Amenities & Schools
Short Drive to M61 & Horwich Parkway for Access to Manchester
No Chain & Vacant Posession
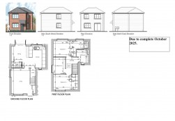
Introducing a rare opportunity to purchase a beautifully designed new build home, scheduled for completion by the end of 2025. This contemporary property will be finished to a high standard throughout, ideal for growing familes ot those wanting a lock up and leave.
The home will feature a spacious open-plan kitchen and dining area, ideal for modern living and entertaining. The master bedroom will boast a stylish en suite, offering privacy and comfort.
One of the standout features of this property is the opportunity for the buyer to personalise key elements of the final finish, making it truly your own. From kitchen fittings to flooring and colour schemes, the owner will have the chance to personalise the space to reflect your style and preferences.
Perfect for those looking for a turnkey property with a bespoke touch, this is a chance to own a home that has a contemporary finish with their own pesonal touch.
It is ideally located within walking distance to local Coop, Middlebrook and Horwich Parkway Train Station for access to Manchester yet just a short drive to the M61 and Horwich Town Centre. There are also fantastic walks and cycle routes in the Rivington Countryside right on your doorstep, it really is the best of both worlds!
** STUNNING THREE BEDROOM SPLIT LEVEL SEMI-DETACHED HOME IN CENTRE OF HORWICH WITH OWN GARDEN ROOM**
Finished to Highest Spec Throughout - Thoughtfully Modernised - Driveway for Multiple Cars - Newly Landscaped Garden...
**STUNNING 'SHOW HOME' STYLE THREE BEDROOM SEMI-DETACHED IN BLACKROD**
Finished to Highest Standard Throughout - Ready To Move In - Gated Driveway Parking - Low Maintenance Rear Garden - Versatile Accomodation - Close...
**ONE BEDROOM TOP FLOOR APARTMENT IN PRESTIGIOUS OVER 60's DEVELOPMENT**
Second Floor with Open Views - Newly Installed Walk In Shower - Large Communal Lounge Offering Activities - Lifts to All Floors -Sought After Hor...